重庆第246站——龙湖海成青云阙
最近很多的购房者一直都在问天狼,重庆XXX楼盘怎么样,值得购买吗?我该在重庆哪儿买房,天狼从今天开始就加一个项目,实地评测,重庆第246站——龙湖海成青云阙,北面的市场一直以来都是很多购房者关注的焦点,但是北面的市场也非常广阔,但整体而言基本都是往外在延申了,那么今天就给大家带来一个北面市场相对成型一点的地方,这就是我们今天要测评的主角---龙湖海成青云阙

交通先行
惯例,我们首先来看区位图,从区域图上,我们可以看到由金开大道、渝都大道、金渝大道、金兴大道、内环快速路所组成一个相对便利的交通路网
在备受购房者关注的公共交通方面,尤其是轨道交通方面,目前步行10分钟以内是在修建中的15号线果塘路站,整体而言,在交通方面,出行是相对便利的
教育随后
根据置业顾问介绍,学校划片入读
商业紧跟
那么在商业方面,项目本身所处于位置,周边有其他已经成型小区,小商业比较齐全,能满足家庭成员的需要,商业方面的话大型这种商业基本就是宜家了,那么距离最近照母山商圈都有足足8公里距离了,在商业方面的配置来看,只能说尚可

接下来,我们来看看项目情况
首先来谈谈项目的优势
第一,配套齐全
第二,轻轨房
对于龙湖海成青云阙项目而言,最大的核心点在小区的环境比较理想的,这点在大家看房的时候,就可以实地的感受到,龙湖的景观设计和园林的打造,另外一点就是出行相对的有所的保障的,修建中的轻轨15号线
劣势:
第一,桥梁,可能有噪音影响
第二,信号塔
第三,汽修厂、加油站、批发市场可能有噪音影响
接下来,那么我们该看户型了,根据置业顾问介绍来看,
2号楼洋房 9号楼大平层 11号楼高层
交房时间:预计2025年6月
物业:龙湖 3.5
高层总价145-200、洋房总价250-270、大平层总价240-260 洋房1楼有花园(仅有2套)


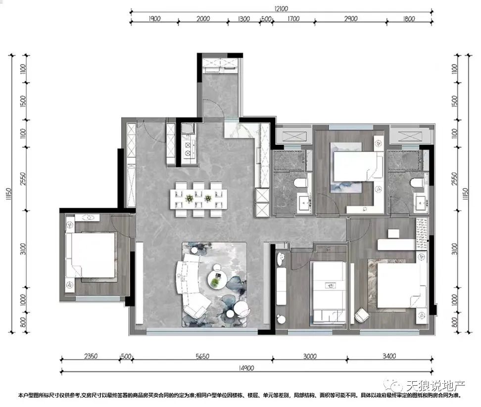
高层2个户型,套内75和99
整体说下户型优势:
第一,动静分区明显,隐私性比较好
第二,采光通风效果比较好
第三,得房率高
PS:高层户型建议选择套内99的

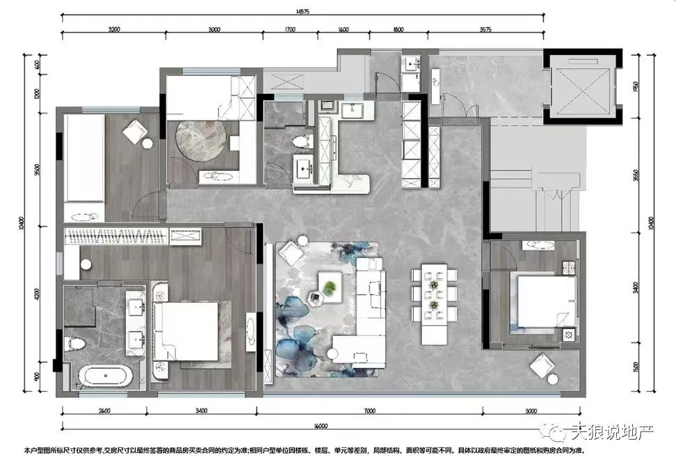
洋房套内119
整体说下户型优势:
第一,入户玄关,隐私性比较好
第二,采光通风效果比较好
第三,现代化横厅式的设计风格

大平层套内115
整体说下户型优势:
第一,入户玄关,隐私性比较好
第二,采光通风效果比较好
第三,现代化横厅式的设计风格

那么最后就是大家关注的问题,这个楼盘到底如何呢?对于这个盘而言,小区的景观确实比较的理想,居住在这周边有改善需求,想要换一个小区环境相对比较好,可以适当考虑考
附:龙湖海成青云阙楼栋分布图


