在成都主城,找到幸福生活坐标
华西都市报
关注新的一年,成都新房市场百花齐放,在新政刺激之下,购房者也纷纷加速进场。
但市场越宽松,买房就越是一门技术活。
既要便捷丰盈的生活方式,又要有接洽自然的闲适;既要有良好的发展潜力,又要有出类拔萃的品质;更重要的是价格不能太高,不能降低生活的品质……
然而,很少有项目能满足购房者“既要又要还要”的均衡需求,房价往往和品质、配套挂钩,真正诗意的幸福栖居已成为奢侈。当前的成都楼市,还会有哪些惊喜?
NO.1|壹
买房,首先有一个基础却又深刻的标准——区域发展潜力。
如何衡量?有顶层设计的布局,汇聚大批高新产业、人才精英,而他们对居住、商业方面的积极要求,又支撑起区域价值的快速飞升。
放眼成都,北部新城正是这样一个极具发展潜力的区域。
作为成都主城区之一的金牛区,是主城重要的产能聚集地,地区生产总值连续33年位居主城五区第一。(信息来源:封面新闻)
(成都金牛区实拍图 图据掌上金牛)
承载十四五规划大势,金牛区高标准落地“建设天府成都北城新中心”。根据规划,北部新城是成都七个城市副中心之一,也是整条天府大道沿线唯一一个城市副中心,将承担“现代商贸与商务”“轨道枢纽与门户”“科技研发与文创”“生态宜居与人文”四大功能,成为“人城境业”高质量融合发展的城市心新极核。(信息来源:四川日报)
近几年,随着城市总体规划的全面推进,以产业带动、生态融城、文体驱动的北部新城,其区域潜力和价值得到全面认可,成为主城改善置业的新方向、新选择。
NO.2|贰
那么,在北部新城的价值高地,谁可以实现成都人购房#既要又要还要#的需求?
答案一定是位于北部新城C位的幸福桥TOD·幸福拾光。目前项目三期已开盘,作为值得下手的全优改善产品,重新定义了成都幸福生活的坐标。
就地段来说,幸福桥TOD·幸福拾光可谓天生C位。
幸福桥TOD·幸福拾光项目区位示意图 图据封面新闻
百度地图显示,项目距地铁5号线幸福桥站直线距离约200米,这条贯穿成都南北的地铁线路可直通高新区、天府新区等多个热点板块,拉近南北之间的时空距离,另外项目旁边还有地铁27号线在建。同时还拥有北星大道、凤凰山高架、四环路、天龙大道、三环路等两纵三横的立体交通,高效贯通全城。
此外,项目周边还有相当丰富的产业、商业、教育配套规划,各类醇熟配套资源,有序环绕其侧,支撑起更高浓度的幸福生活。
在产业方面,目前北部新城已聚集了中铁轨道高科技产业园、人工智能产业园、国际商贸城、西部地理信息科技产业园等产业中心,它们将在人工智能、互联网等前沿领域形成集群式发展,将直接对高精尖人才产生“虹吸效应”,持续为区域发展提供强力支撑。
中铁轨道高科技产业园实拍图,图据成都发布
在高品质公服配套上,北部新城已经成为成都超人气聚集地,城市界面也焕然一新:可容纳6万人的凤凰山体育公园,已经是成都承接国际国内顶级赛事的重要场馆;露天音乐公园是城北著名的网红地标建筑,拥有成都最大的穹顶天幕和沉浸式立体放映厅,其核心区可容纳约4.7万人观演。
凤凰山体育公园实拍图,图据封面新闻
其次,从生活的维度来看,幸福桥TOD·幸福拾光还成为了繁华和繁花的平衡点。
项目位于北部新城核芯板块,伴随着区域的蓬勃发展,商业配套逐渐丰富。片区内已经有保利广场、龙湖天街等多个商业综合体开业运营;更为重磅的是以“游憩式购物公园”为主题的幸福桥TOD·金牛招商花园城,将于2024年5月开业(信息来源:金牛招商花园城公众号),届时将为区域购物增加新的去处,成为区域又一个大型品质商业消费场所。
幸福桥TOD·招商花园城效果图,图据金牛招商花园城官微
居民们日常离不开的公园、学校、医院等生活配套在项目周围有序排开。凤凰山公园、蜀道通衢园、悦动之心公园等构筑起区域的生态本底;金牛区中医院新院区(在建),金牛区机关三幼、成都实验小学等优质城市资源汇聚。(资料所涉学校的具体入学资格、开学时间以教育部门、学校、幼儿园政策及通知批文为准,我司宣传内容并不构成承诺)
(金牛区中医院效果图,图据掌上金牛)
这些优质的城市资源矩阵、公园交融的城市空间、多元化的生活场景,赋予了幸福桥TOD·幸福拾光更多“幸福感”的基调。
NO.3|叁
我们惊艳于项目的天赋优势,但更感叹其本身的产品魅力。不管是交付兑现力还是产品打造实力,幸福桥TOD·幸福拾光已成为区域购房者的关注焦点。
幸福桥TOD·幸福拾光项目一期实拍图
目前,幸福桥TOD·幸福拾光项目一期已实景交付,低密优越的中庭景观、优美挺拔的建筑立面等,兑现着所有关于家的美好。
据了解,项目近期已加推三期地块,该地块由14栋9F—17F小高层组成。项目整体采用围合式布局,以阔绰的楼栋间距,充分保证每一户的视野采光,增强居住的体验性。在这里,能享受一种城市、人、自然、社区无界融合的生活方式。
幸福桥TOD·幸福拾光项目3期总平示意图
对于主城购房者而言,幸福桥TOD·幸福拾光无疑是可以“闭眼入”的代表。
为什么这么说?
首先来看价格,当前5+2城区新房成交均价已达到26815元/㎡(数据来源:锐理数据),而幸福拾光三期最低单价仅约15999元/㎡起,放眼成都楼市,这样的价格极具竞争力。
其次,在价格因素之外,幸福桥TOD·幸福拾光以低密为法则,展示出高性价比的产品逻辑。购房者既能避免“刚需”尴尬的将就,也不需要承载高端改善高成本的压力,堪称区域的“性价比王者”。
在户型设计上,幸福桥TOD·幸福拾光既能契合“刚需”家庭的舒居需求,又能满足改善家庭对居住品质的更高要求,产品面积段为108-143㎡,以合理的功能空间布局,适应多阶段家庭的舒适体验。
建面约108㎡户型作为项目的爆款,是当前区域少有的小面积产品。该户型恰到好处的地方,就是在做到总价控制基础上,以合理的空间尺度,满足大部分购房者的诉求。
具体来看,该户型拥有独立玄关,独立生活阳台,展现出生活的品质感和井然有序,约5.8米超宽观景面,让家人能共沐阳光清风。
幸福桥TOD·幸福拾光项目建面约108㎡标准层户型
平面示意图
注:1.本资料所示户型图标主要以轴线尺寸为准(可能存在差异),所述长、宽均为大的值,展示的产型面积仅为大概数据,仅供参考,不作为要约或销售承诺。2.户型图内装修风格、家具摆放、管井位置、承重墙体均为参考。3.图中所示地板、地砖、家具、家电等均为非交付标准,具体交付标准以及本户型图未展示建筑面积以外墙体结构、布局,以买卖双方签署的《商品房买卖合同》及其附件、补充协议为准。4.不同户型的面积尺寸、功能布局、空间分割等均有不同,相同户型单位,因楼栋、楼层、单元、房号等差别,局部结构、采光面、位置、朝向、尺寸、管道、面积等可能存在差异。
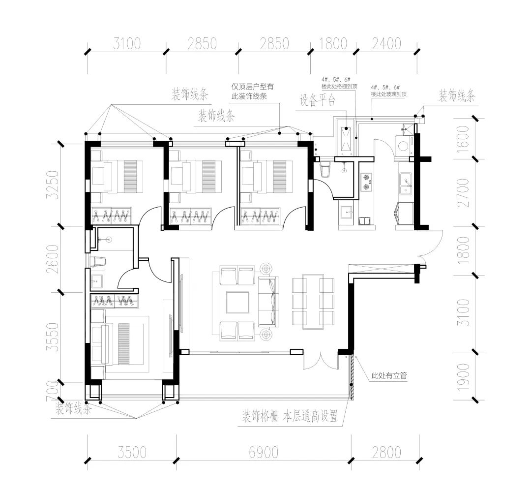
建面约135㎡的四房户型,大横厅设计,拥有约6.9米超大面宽景观阳台,四季美景尽收眼底。户户双面采光,尽显通透明朗,给居者更高级别的享受与体验感。
幸福桥TOD·幸福拾光项目建面约134㎡标准层户型
平面示意图
注:1.本资料所示户型图标主要以轴线尺寸为准(可能存在差异),所述长、宽均为大的值,展示的产型面积仅为大概数据,仅供参考,不作为要约或销售承诺。2.户型图内装修风格、家具摆放、管井位置、承重墙体均为参考。3.图中所示地板、地砖、家具、家电等均为非交付标准,具体交付标准以及本户型图未展示建筑面积以外墙体结构、布局,以买卖双方签署的《商品房买卖合同》及其附件、补充协议为准。4.不同户型的面积尺寸、功能布局、空间分割等均有不同,相同户型单位,因楼栋、楼层、单元、房号等差别,局部结构、采光面、位置、朝向、尺寸、管道、面积等可能存在差异。
除此之外,143㎡户型空间更是可圈可点。
建面约143㎡户型为四室两厅双卫,该户型全部位于小区中庭,南北通透,坐拥得天独厚的视野优势,推窗即望庭中景观,更大程度上匹配客户深度改善需求,居住舒适度更强。
在设计上,该户型功能空间齐全,分布合理;餐客厅一体化设计,连接超7米瞰景阳台,将采光、观景、通风三大功能发挥到极致,承载主人会客、休闲、派对等功能;主卧套房设计,包括步入式衣帽间和独立卫生间,尺度舒适。
幸福桥TOD·幸福拾光项目建面约143㎡标准层户型
平面示意图
注:1.本资料所示户型图标主要以轴线尺寸为准(可能存在差异),所述长、宽均为大的值,展示的产型面积仅为大概数据,仅供参考,不作为要约或销售承诺。2.户型图内装修风格、家具摆放、管井位置、承重墙体均为参考。3.图中所示地板、地砖、家具、家电等均为非交付标准,具体交付标准以及本户型图未展示建筑面积以外墙体结构、布局,以买卖双方签署的《商品房买卖合同》及其附件、补充协议为准。4.不同户型的面积尺寸、功能布局、空间分割等均有不同,相同户型单位,因楼栋、楼层、单元、房号等差别,局部结构、采光面、位置、朝向、尺寸、管道、面积等可能存在差异。
幸福桥TOD·幸福拾光用产品诠释了幸福生活的真谛,应该是更优质的居住环境和更好的生活方式的跃升。
结 语
当成都连续14年位居“中国最具幸福感城市”榜首,以北部新城为代表所呈现的“人城境业”高质量融合发展,“诗意栖居”近在咫尺的生活方式,无疑成为人们幸福生活的增长点,而幸福桥TOD·幸福拾光就是精准的定位。
目前,幸福桥TOD·幸福拾光三期产品火热销售中,建面约108㎡-143㎡纯板式洋房惠后单价约15999元/㎡起!凭借高性价比和高品质的均衡特质,项目展现出强劲的购买优势,有置业需求的购房者可重点关注。
预售证号:510106202371092
推广